J9直营集团【中国大陆】官方网站
J9直营集团
公司介绍
品牌介绍
新闻中心
产品中心
制冰机
冷柜
洗碗机
展示柜
饮料机
我要开店
茶饮
咖啡
餐饮
酒吧
烘焙
服务中心
网上即时报修
资料下载
J9直营集团
企鹅教室
报修专线
400-908-9088
我要开店
专业厨具制造商 餐饮的合作伙伴
茶饮
堂吃
外带
咖啡
堂吃
外带
餐饮
中餐
西餐
日式餐饮
火锅店
酒吧
酒吧
烘焙
- 蛋糕店
蛋糕店
面包房
星级冰块,打造星级饮品
J9直营集团方冰制冰机
高透屏,让美味无处遁形
艾世铭蛋糕柜
洗得干净,用的放心
艾世铭洗碗机
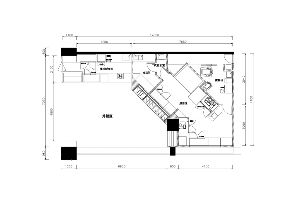
店铺展示
店铺图纸
制冰机
冷柜
DCM-80LS-HC
J9直营集团 碎冰自动出冰机
碎冰 80kg/24h
CM-140KE
J9直营集团 CM系列(已停产)
碎冰 140kg/24h
HR-78MC
J9直营集团立式冷藏柜 M系列
温度范围:冷藏 -6℃~+12℃
HF-128MC
J9直营集团立式冷冻柜 M系列
温度范围:冷冻 -25℃~-7℃
RT-158MC
J9直营集团平台冷藏柜 M系列
-6~+12℃ / 深750mm
J9直营集团立即获取定制化的制冰方案!
立即获取